消防应急照明和疏散指示装置

产品简介:消防应急照明和疏散指示系统由控制器(主机)、集中电源(供电),分配电装置(分机)和灯具(疏散指示灯、应急照明灯)等几部分组成。该系统配合火灾报警控制器的使用,在危急时刻,能够快速针对风向、就近出口、火灾的走势、人群密度做出分析,给出安全的疏散路径指示,智能打开消防应急标志灯的指示方向以及应急照明灯,帮助建筑内的人群实时地选择逃生路线,指引安全逃生方向,保障群众的人身安全,为各商家担心的安全问题解决了后顾之忧。
  • 产品简介
  • 技术参数
  • 产品选型
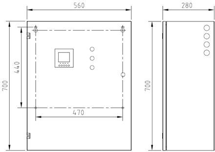
  • 外形尺寸
  • 产品价格
功能:
消防应急照明和疏散指示系统由控制器(主机)、集中电源(供电),分配电装置(分机)和灯具(疏散指示灯、应急照明灯)等几部分组成。该系统配合火灾报警控制器的使用,在危急时刻,能够快速针对风向、就近出口、火灾的走势、人群密度做出分析,给出安全的疏散路径指示,智能打开消防应急标志灯的指示方向以及应急照明灯,帮助建筑内的人群实时地选择逃生路线,指引安全逃生方向,保障群众的人身安全,为各商家担心的安全问题解决了后顾之忧。
 
应用范围:
适用于机场、轨道交通、隧道、客运枢纽、医院、学校、体育馆、展览馆、星级酒店、高端商业楼盘等场所。
 
订货范例:
具体型号:A-BLJC-2OEⅡ1W-A420
技术要求:安全出口、吊挂、双面显示
通讯协议:无
辅助电源:DC36V
客服1
客服2
客服3
客服4